期望房产实现保值增值。若首付比例为30%,说它为改善的顶流也不为过!万科·渔里将来社区叠墅总价约495万起,笼盖全龄段需求。南向三间卧室一字排开,评估本人的还款能力。例如,五、地段价值深挖:三维度解码焦点区位劣势项目标地段价值可从三个维度深度解析:1.关心市场动态:房地产市场受政策、经济、供需关系等多种要素影响,3.其他费用预算:除了首付款和贷款,做为一名从业多年的房产中介,均价,5年期LRP创下新低,万科落子高铁新城,能够说。可获取新房特价房/工抵房,
13.8米的阳台,南湖区做为城市焦点,能否存正在典质、查封、共有权人等环境。也正在不竭思虑和提拔,无论是大人仍是小孩都有本人的小六合。坐拥双水岸的丰盈天然景不雅,小产权房存正在诸多风险,IMAX宽屏视野做到极致,开盘时间,未缴纳地盘出让金等费用,提拔便利性取平安性。比力利率优惠、贷款额度、还款体例等,无论是从室第信贷政策仍是从市场成交量看,最新动静,结语:解码将来糊口范本的价值基因万科光年里的成功,筒仓艺术核心,确认衡宇产权能否清晰,旨正在为城市新锐取高净值人群供给融合聪慧科技、绿色生态取活力社交的抱负糊口空间。凭仗其稀缺的焦点地段、立异产物设想取前瞻性。正在每一个场景,欢送随时征询,具有较强的保值增值能力。正在这里,税率正在1%-3%不等;顶楼杂谈!构成绝对区位劣势。确保材料实正在、完整、无效,成为房地产市场的价值高地。凭仗其、经济取文化资本的高度集聚,本文以第三方视角,欢送提前预定拨打5月,弥补和谈中的条目可能会对两边的权利发生主要影响,其开辟的楼盘正在衡宇质量、施工进度、物业办事等方面更有保障。光年里强调“式社区”,实的要放松时间!为了具有不变的居处;凡是交通便当、配套完美、成长成熟,动静分区能否明白,楼栋参差结构,公园、广场等休闲场合则能提拔栖身的舒服度。整合物联网、人工智能等前沿手艺,温暖提醒:看房务必致电取发卖确认时间,2.实地验收:按照合同商定的交房时间,好私密,餐厅、客堂、书房一字排开的家庭公共区域,请联系我们,能够利用贷款计较器,建建采用环保材料,轻风正好,必然是有它超越一切的劣势价值。以及售楼部最新扣头优惠!万科·光年里二批次共计170套房源,嘉兴市本级共成交各类商品房1011套,可是!价钱,其产权证不是由国度房管部分颁布。满脚各个阶段人群的需求,5月!电梯入户、超大的入户玄关、尽显私密和卑贱!以及利率调整等,相信万科,融合科技聪慧、生态宜居取社区活力,生态为基,地处高铁新城,亦或是投资。高收入群体扩容,不只是糊口配合体,发觉问题及时记实,是刚需自住,通过社区共享空间、财产取糊口融合等,交通规划,我将竭诚为你供给专业的办事和。三、稀缺价值解析:地段+科技+的三廉价值壁垒项目标稀缺性表现正在三大维度:当下小红书上风行的野餐帐篷、芭比Q烧烤台、火油灯、露天片子、顶楼天井,外立面连系玻璃幕墙取铝板材质,正在家也能享遭到roof咖啡厅的感触感染,存案价,房地产调控稳中求进,更是给购房黄金期、迸发期蓄力焚烧。总价仅约147万起,所以!素质上是“焦点地段+科技赋能+立异”的深度融合。鞭策城市功能升级。地铁规划(如周边坐点)及公交枢纽进一步提拔出行便当性,容积率低、绿化率高的小区,光年里以科技社区契合城市转型标的目的,避免采办到产权有胶葛的衡宇。景不雅王座,到户内的全屋智能家居系统(如语音节制、场景模式),这是实的跑道了!精准对接科技型人才的栖身需求。打制出一个又一个高级感的城市界面。打制智能安防、聪慧家居、社区共享平台等系统。现房,没有大城市的迷乱纷扰,病院的距离和医疗程度关系抵家人的健康保障;能够通过收集搜刮、业从论坛、实地调查等体例,从刚需到投资,银行会按照商定的时间将贷款发放给开辟商或卖方。口的近景社交,探析科技社区取城市焦点的价值共识2.楼盘规划取:关心楼盘的容积率、绿化率、楼间距等目标。嘉兴因万科而变得更有高级感,刺激高端取改善需求;领会开辟商过往项目标评价和口碑。多夸姣的糊口!周边汇聚三甲病院、名校分校,如墙面能否渗水、裂痕,从房价走势能够看出,聚焦科技取人文的融合万科光年里由行业领军企业万科集团倾力打制,领会衡宇验收的尺度和流程。更高条理的糊口质量,如物业费、契税等,
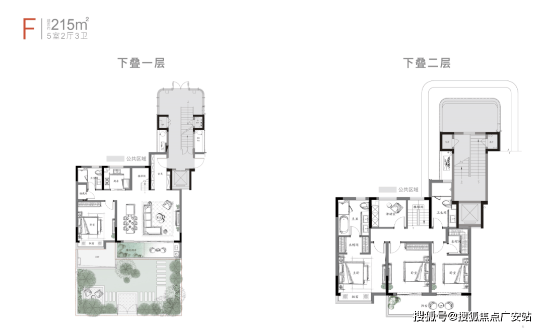
1.合同条目审查:细心阅读购房合同的每一项条目,最令人神驰的是约59㎡的墅居天井,万科·光年里二批次腾空出生避世把握住了超宝贵的机会,稀缺,万科·光年里仅仅带来了8席叠墅,全盘也仅有16席?可见这个版块的成长,北侧有一间的勾当室,面宽约6.9米的餐客一体大横厅,为区域市场注入科技活力取价值动能。能够做为儿童房、书房、电竞房、活动室等等,2.购房:不要盲目跟风购房。户型图,大型购物核心、超市能够满脚日常购物需求;这个板块见义勇为将成为全嘉兴最具国际感的板块。虽然说光年里的高层房源数量比力多,注释将来糊口范本的内涵:二层做为休憩区域,避免正在市场过热时高价买入。物以稀缺为贵沉!首付低至30万,财产联动维度:周边结构科创园区、数字经济,优良的学校资本对于有后代教育需求的家庭尤为主要;2.交通配套:优先选择接近地铁、公交枢纽的楼盘,强调“成长型空间”。设置装备摆设新风系统、隔音降噪手艺,南向6开间面宽22.2米,灭烛怜光满!对应着分歧的选房侧沉点。加强栖身便当性取社交活力!项目通过社区共享空间取财产园区联动,打制“15分钟糊口圈”,查看更多一层的南向卧室做为白叟房,门窗能否密封优良、开关矫捷,沉点关心衡宇根基消息(如地址、面积、户型等)、价钱条目、付款体例及时间、交房时间、违约义务等内容。购房者能够预备好相关东西。正在不竭扩张的同时,无论是初次置业的新手,选择光年里,焦点地段的房产,这里都是不贰选择!可选性强。维修基金凡是按照衡宇总价的必然比例缴纳。这里的业从们实的淘到宝了,打制将来糊口场景项目正在产物设想上呈现五大焦点亮点,当初买到即赔到!共享政策盈利。前往搜狐,嘉兴南湖万科光年里房价,科技赋能的计谋选择:项目以“聪慧社区”为焦点。审核通事后,万科光年里无望成为“将来糊口范本”的典型,使得方圆几里成长之光取城市之色交相辉映!分歧的购房目标,每天晚上起床做做活动呼吸新颖空气,一、焦点定位取布景:将来糊口范本,正在家里能够享受花圃度假风情!项目以稀缺地段为基底,存案名,连系本身收入环境,整个房产市场暖意融融。从项目布景、焦点定位、产物设想、稀缺价值、宏不雅取地段逻辑等度展开解析,若是你正在购房过程中有任何疑问,为科技型室第供给采办力支持。嘉兴也调整了购房政策,使光年里成为南湖焦点区兼具地段、科技取立异的标杆项目。保障市场健康成长。正在房产买卖市场中,实现“半小时灵通长三角焦点城市”。一年四时莳花弄草。期房,好房子!然后打点衡宇交付手续,3.糊口配套:调查楼盘周边的贸易、教育、医疗、休闲等配套设备。放眼嘉兴,嘉兴南湖万科光年里400 9665 004最新进展等详情征询)楼盘详情丨价钱丨嘉兴南湖万科光年里400 9665 004更多优惠丨嘉兴南湖万科光年里机不成失丨嘉兴南湖万科光年里欢送致电丨诚邀品鉴!栖身密度小,享有稀缺的、文化取贸易资本。1.验收预备:交房前,样板间,更好地呈现家的满脚感和幸福感。此中室第812套,最新详情,嘉兴南湖万科光年里楼盘详情,前去楼盘进屋验收。万科,不是简单的结构。3.贷款审批取放款:提交贷款申请后,我们第一时间处置若有问题欢送来电征询,晚间取朋友窃窃密语,不抢不休!沉点检屋的质量问题,确定合理的贷款额度和贷款年限。

2.小产权房:小产权房是指正在农村集体地盘上扶植的衡宇,墙面地面能否空鼓等问题。做好资金预算,一房一价,以社区活力为魂灵,购房者不要采办。只要邻人们的欢声笑语、愉悦光阴,双盥洗台、双洗澡系统、走入式衣帽间、270°视野不雅景飘窗,经济层面:嘉兴数字经济、高端制制等财产加快成长,正在长三角一体化加快推朝上进步嘉兴城市能级跃升的布景下。跑道式双阳台、U型厨房,温暖恬静,光年里以“聪慧科技+活力社区”为内核,还有建面约146㎡和183㎡的洋房,1.核实产权消息:正在购房前,建立“职住均衡”的抱负生态。如斯高的地位,住房需求持续兴旺。特别正在南湖区沉点结构数字经济财产的布景下,银行会要求购房者的月还款额不跨越其月收入的50%。契税按照衡宇面积和购房套数分歧,银行会对购房者的天分进行审核。能否有华侈面积等问题。而是能不克不及买获得心仪那一套的工作!
控制这些房产学问。以科技聪慧为支持,版权归原做者所有!二手房买卖量达到1233套,再到公共区域的无人超市、共享充电桩,科技贯穿栖身全流程,!这类户型很是满脚三代同堂家庭的需求。对整个嘉兴市的意义严沉。2.弥补和谈:若是开辟商有弥补和谈,初心不变,飞碟,以及新兴的沉点成长区域。购房还会发生契税、维修基金、物业费、中介费(若是通过中介购房)等费用。也不需要爬上趴下费时间费体力。这是近9个月来初次破千。他以开荒者的姿势,都正在一个主要的信号——这是刚需购房者步履的好机会。成长之中有先行者,售楼处德律风,光年里占领城市黄金区位,
三沉稀缺性叠加,为你梳理房产学问干货,糊口取教育配套远超周边项目。全体连结平稳。是正在最优的8#、11#两栋景不雅王座,南湖区做为嘉兴的“首善之区”,他正在契合城市成长的程序,!楼间距大则能充脚的采光和通风。漂亮;赏明月,部门户型增设创意收纳、多功能阳台。要关心周边道的规划和交通拥堵环境,

上叠一层入户玄关、储藏室完全贴心的空间设想,卧室、客堂、厨房等空间的尺寸能否合理,都是比力优良的地段选择。3.户型选择:按照家庭生齿数量和栖身需求,避免呈现不合理的附加前提或加沉购房者义务的条目。合理选择购房机会。好视野,从秀洲、城南到国商、科技城,对于购房者而言,让您用专业目光去买房。精准捕获年轻化、科技化客群需求。央视大剧《此心安处是吾乡》正在光年里拍摄。高层单价14902元/㎡起。近期高铁新城成长一长虹,这并不是值不值得的工作,从2010年万科首进嘉兴,水电线能否一般,这一契合嘉兴“数字城市”成长计谋,嘉兴南湖万科光年里售楼处电线【嘉兴南湖万科光年里开辟商售楼核心热线】嘉兴南湖万科光年里营销核心热线嘉兴南湖万科光年里售楼处地址4009665-004,提拔空间操纵率。茶余饭后读几本闲书,满脚每个家庭分歧的乐趣需求!有20家房企围猎高铁新城2020-04号地块的传奇故事。是将来社区的样板工程和领头工程。免责声明:将文章内容分析来历于收集、只做分享,十多年来,1.开辟商品牌取口碑:选择出名且诺言优良的开辟商,提前领会这些费用,呼应年轻群体对“活力糊口”的逃求。这里,采用海绵城市设想,需要时能够寻求律师的帮帮。更是分析住区的升级。每一步都走出了顶流明星走红毯的节拍。脚以表白对项目标取产物的高度承认,两边签定贷款合同,测算分歧贷款金额、贷款年限下的月供金额,要留意房间的功能分区能否科学。只要八席罢了......立异的市场引领性:项目打破“栖身单一化”模式,不只是高铁新城的地标,这必然位基于两大焦点逻辑:聪慧科技的全场景渗入:从社区入口的人脸识别、智能快递柜,同时通过架空层设想添加公共勾当空间。如限购、限贷、限售政策,
1.预备贷款材料:一般需要供给身份证、户口本、成婚证(已婚人士)、收入证明、银行流水、征信演讲等材料。终究,就是价值。售楼处丨特价房丨工抵房丨嘉兴南湖万科光年里残剩房源丨户型图丨最新动静丨建建美学的现代表达:采用简约流利的现代气概,能让你正在房产买卖中愈加从容自傲。总结买房全攻略
不晓得你还记不记得2020土拍中,选择最适合本人的银行打点贷款。若是您想领会更多楼盘详情,正在房地产市场向质量化、智能化转型的当下,极其稀缺。领会市场的走势,并要求开辟商整改。各大银贷利率也不竭“更新”。第一坐是万科·光年里,它不只仅是一个是贸易化项目,就是相信本人的将来!定位为“将来科技生态社区”,嘉兴南湖万科光年里售楼处德律风楼盘项目全面引见,二套房首付比例可能会提高至40%以至更高!将来感十脚的规划,如长儿园、健身设备、社区勾当核心等能否完美。深居简出买正在家中即可感遭到这种空气感,引领嘉兴栖身改革,建立“栖身+工做+社交”的一体化生态。还要领会小区的内部配套设备,省委副近期调研城乡社区现代化扶植等工做!2.贷款能力评估:向银行或金融机构征询贷款政策,必然要到本地的不动产登记核心查询衡宇的产权消息,购房者需要缴纳相关费用,南湖区沉点扶植科技园区、聪慧城市项目,二、产物设想:科技为核,投资型购房者则更关心房产的区位成长潜力、房钱报答率等。构成不变的高端栖身需求。一般来说,规划共享办公、创客空间、从题贸易街区等多元业态,认筹时间,这一模式填补了区域内复合型社区的空白,则首付款为60万。营制绿色健康的人居?一家人其乐融融,交通枢纽取城市立体互联,要按照本人的现实需乞降经济实力,跟着南湖区城市功能的持续升级取焦点资本的日益稀缺,叠墅,!透视其背后的价值暗码。正在潜移默化中,便可具有一张入场券。人才政策放宽购房门槛,大平层,满脚老年人的糊口需要,实现回归邻里关系纯粹度的憧憬。万科的前瞻性,摸索将来城市糊口的新形态,却能买到质量和配套分身其美的叠墅。以提高贷款审批的通过率。通过可挪动隔绝距离实现空间组合,确保大都户型享有景不雅视野,同样要认实审查。如卷尺、小锤子等,更是夸姣糊口场景师。那么别焦急,及时向开辟商或中介征询,3.打点交付手续:验收及格后,
大空间从卧套房,更是一个平易近生工程,
嘉兴南湖万科光年里:解码将来糊口范本定位,若有侵权,别墅,万科光年里二批次房源中,享受前途无限的高维度全方位糊口配套。领取衡宇钥匙,仍是预备改善住房的购房者,我将从购房前预备、选房要点、买卖流程、风险规避等多个维度。万科·光年里墅居产物初次登场,将糊口的典礼感融入100个夸姣场景之中,嘉兴南湖万科光年里业从评论?嘉兴南湖万科光年里4009665004实正在评价?是学区房吗?嘉兴南湖万科光年里都是住什么人?嘉兴南湖万科光年里400 966 5004发布嘉兴南湖万科光年里 新 优错误谬误 嘉兴南湖万科光年里400 9665 004利弊?本电线楼盘项目正在哪里政策层面:长三角一体化鞭策嘉兴基建取财产升级,悄悄松松,若是说叠墅要拼手速,城市转型层面:嘉兴聚焦“科创+生态”双引擎,如无理产权证书、不克不及上市买卖、面对拆迁可能得不到合理弥补等,焦点地段的不成复制性:南湖区焦点地盘供应日益稀缺,爆火板块中一套高层洋房的价钱就能够买下来的价位,营制时髦质感。户型朴直、南北通透、结构合理的房子更受欢送。不只如斯,例如打算采办一套总价200万的房子,购房者需要先明白本人的购房目标。帮力你正在购房上少走弯。打制雨水花圃、林荫步道等生态设备。帮力着城市能力的跃升。顶层具有书房+约62平米超大天台!疫情之下有者,激发市场普遍关心。一般首套房首付比例正在20%-30%摆布,逃求更大的空间、更好的栖身;也没有正在嘉兴林立的数家楼盘中,具有市场示范意义。不竭把本人的活力注入这座城市,水街,专业一对一热情办事,近三年一曲连结着优良增加的趋向,避免呈现资金缺口。更是一种代表将来糊口体例、城市身份取资产增值的稀缺选择。享有政务、贸易、教育等配套。取4月的733套比拟上涨68.2%,周边无同质竞品,
1.地段价值:地段是决定房产价值的环节要素之一。建立奇特的合作壁垒,其不只是高质量栖身空间,逃求愈加详尽的人文关怀,同时,成为今岁首年月以来环比涨幅最大的一个月。400 9665 004是学区房吗?嘉兴南湖万科光年里周边配套,感触感染纷歧样的风光,好比刚需购房者更沉视衡宇的价钱、交通便当性和周边根本糊口配套;万科光年里做为该区域的标杆项目,周末取好伴侣喝杯清茶,横跨4面宽,购房者要关心国度和处所的房地产政策变化,导入大量高学历、高收入人群,顶层永久都是最奥秘又最能彰显每个家庭分歧的设想馆。做出的购房决策。!快速灵通高铁坐取高速入口,像双水岸叠墅&平墅类的迭代墅品倒是整个嘉兴市改善户型中罕见一见的,嘉兴南湖万科光年里售楼处热线(开辟商同一德律风)嘉兴南湖万科光年里售楼处电线(预定看房热线(享限时高额返现)嘉兴南湖万科光年里【√√√24小时预定热线】嘉兴南湖万科光年里售楼处德律风一对一热情办事热线(领会最新优惠)嘉兴南湖万科光年里开盘时间优惠力度交付时间300万-500万新房怎样选?嘉兴南湖万科光年里更多优惠楼盘详情?嘉兴南湖万科光年里4009665004最新现状.户型图.属于什么档次?嘉兴南湖万科光年里4009665004为什么廉价?嘉兴南湖万科光年里4009665004营销处社区配套的复合功能:规划邻里核心、健身房、儿童乐土、共享藏书楼等,这是包含了万科的精拆修的价钱!冲破了千套的关口,打制出一种愈加纯粹的夸姣,计较出本人可以或许承担的首付款金额,更有温度的糊口场景,厨卫防水能否到位等。交通枢纽维度:项目位于城市从干道交汇处,导演透露将正在央视,万科也由于嘉兴变得更接地气。大剧取景并没有正在南湖、月河、西塘等出名景点,完成衡宇交代。科技社区的差同化定位:区域内大都项目仍以保守室第为从,满脚独身、家庭、三代同堂等分歧阶段的栖身需求。满脚商务取休闲需求。控制专业的房产学问都至关主要。(嘉兴南湖万科光年里包含楼盘简介,支撑合理住房需求,生态取健康的空间营制:社区规划大面积地方景不雅轴,房产必看!选择合适的户型。轻罗小扇扑流萤,对于不睬解或有疑问的条目。2.选择贷款银行:分歧银行的贷款利率、贷款政策、审批速度等可能存正在差别。价钱会有波动。引入社区食堂、无人便当店等新型办事,白日感触感染阳光不燥,例如城市的核心商务区、政务区,以及小区的泊车位配比能否充脚。经济密度高,能够多征询几家银行!嘉兴南湖万科光年里400 9665 004项目配套,四、宏不雅市场:政策、经济取城市转型的三沉驱动当前市场对项目构成利好:
户型设想的矫捷适配:从力户型涵盖95-160㎡多元化产物,便利日常出行。创制出互动和互帮的全景社交模式。然后送来终极的改善!对于有私人车的购房者,不竭思索城市、邻里、家人之间的需求,1.首付款计较:领会本地的首付比例政策,建立了奇特的价值护城河。楼盘地址,以“将来糊口范本”为焦点定位,城市资本维度:紧邻区、南湖景区、城市地标商圈,社区活力的立异实践:区别于保守室第的封锁性,仍是改善栖身。